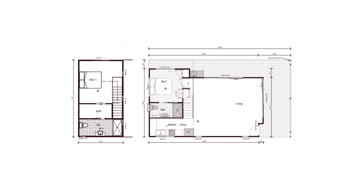
The Davenport

A spacious two-storey granny flat featuring two bedrooms and two bathrooms, designed to maximise both comfort and functionality. Its well-considered layout provides separation and flexibility, making it ideal for rental income or accommodating extended family.

Key Information

2 BED | 2 BATH | 90M2


HOUSE WIDTH 

7.1m


HOUSE LENGTH 

13.09m


Request Quote

Like The Davenport as it is or want to make some modifications? Let’s get started.

Standard Inclusions

Selections and Finishes

This is where your home begins to take shape.

We guide you through the selection of finishes, fixtures and materials - helping you make confident, well-considered choices that align with your style, budget and overall design. With our experience and established supplier relationships, we streamline the process and remove the guesswork, ensuring every element works together cohesively before construction begins.

Showrooms

We connect you with our trusted supplier showrooms, giving you the opportunity to see, touch and compare finishes in person.

From flooring and cabinetry to fixtures and surfaces, you’ll be able to make informed decisions with a clear understanding of how each element will look and feel within your space. Our team is there to guide you throughout the process, ensuring selections remain consistent with your overall design.

Clients can select from a standard range included within the base price, or choose to upgrade through our supplier showrooms to further personalise their build.

Explore More Designs

  • The Alexandria

    1 Bed | 1 Bath | 60m2

    This efficient design maximises space and functionality, making it an ideal option for rental income, guest accommodation or independent living.

  • The Madura

    2 Bed | 1 Bath | 60m2

    A well-designed granny flat featuring two bedrooms and one bathroom, with a layout that maximises space and functionality. Ideal for rental income or flexible living.

  • The Clifton

    1 Bed | 1 Bath | 40m2

    A compact granny flat designed for efficient, low-maintenance living. As our smallest design, it makes smart use of space while remaining functional and comfortable.

“The team at Shepherd have been outstanding so far. They do what they say they’ll do, are well-priced and very detail oriented.”

— Alyssa & Jeremy, Buderim 

Ready to get started?

Whether you’re considering a granny flat, renovation or outdoor project, we can walk you through the options and next steps.

No obligation. Just a clear starting point.

We’ll review your enquiry and get back to you within 1-2 business days.