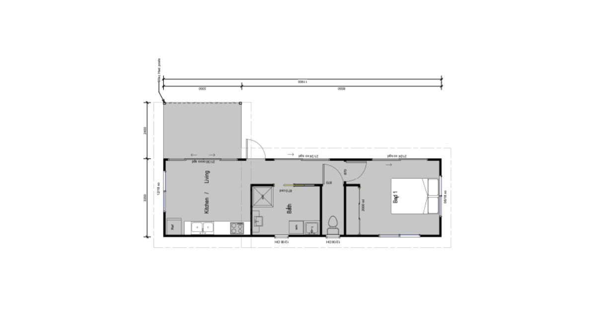
The Clifton
A compact design featuring one bedroom and one bathroom, designed for efficient, low-maintenance living. As our smallest design, it makes smart use of space while remaining functional and comfortable - ideal for rental income or simple, independent living.
Key Information
1 BED | 1 BATH | 40M2
HOUSE WIDTH 5.75m
HOUSE LENGTH 11.9m
Request Quote
Like The Clifton as it is or want to make some modifications? Let’s get started.
Standard Inclusions
Selections and Finishes
This is where your home begins to take shape.
We guide you through the selection of finishes, fixtures and materials - helping you make confident, well-considered choices that align with your style, budget and overall design. With our experience and established supplier relationships, we streamline the process and remove the guesswork, ensuring every element works together cohesively before construction begins.
Showrooms
We connect you with our trusted supplier showrooms, giving you the opportunity to see, touch and compare finishes in person.
From flooring and cabinetry to fixtures and surfaces, you’ll be able to make informed decisions with a clear understanding of how each element will look and feel within your space. Our team is there to guide you throughout the process, ensuring selections remain consistent with your overall design.
Clients can select from a standard range included within the base price, or choose to upgrade through our supplier showrooms to further personalise their build.
Explore More Designs
-

The Davenport
2 Bed | 2 Bath | 90m2
A two-storey, two bedroom, two bathroom granny flat designed for space and flexibility - ideal for rental income or accommodating extended family.
-

The Alexandria
1 Bed | 1 Bath | 60m2
An efficient one bedroom, one bathroom design that maximises space and functionality. Ideal for rental income, guest accommodation or independent living.
-

The Madura
2 Bed | 1 Bath | 60m2
A well-designed granny flat featuring two bedrooms and one bathroom, with a layout that maximises space and functionality. Ideal for rental income or flexible living.
“The team at Shepherd have been outstanding so far. They do what they say they’ll do, are well-priced and very detail oriented.”
— Alyssa & Jeremy, Buderim Ready to get started?
Whether you’re considering a granny flat, renovation or outdoor project, we can walk you through the options and next steps.
No obligation. Just a clear starting point.
We’ll review your enquiry and get back to you within 1-2 business days.